Calm in the Country
Brief
The outgoing owners of this Oxfordshire farmhouse were keen to improve the connection between home and garden; to create more functional space for entertaining, and introduce intrigue in the form of planting and water. They hoped to enhance the appearance of their home on arrival, since they frequently host large parties. Maintaining access to the rear garden was important for accommodating guest parking.
The site sloped steeply from south to north and was overlooked along both those boundaries. We combined native hedging, tall perennials and ornamental grasses to create privacy and vertical interest.
The budget for landscaping on this site, which is 2,25 acres came to £300,000.
Sketch Plan

Moodboard

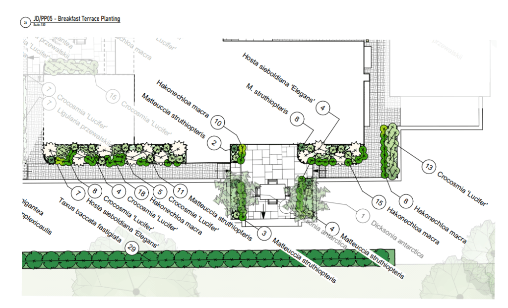
Sweeping naturalistic plantings, an avenue of cherries and water were the order of the day.
Visualisations
Before & After


- A rendered finish softens the appearance of the previously dominant façade, giving a welcoming feel to this family farmhouse
- Confusing twin porches make way for an elegant oak canopy framing the widened front entrance
- Aluminium windows give a contemporary finish
- Architectural planting grounds the building
- The tired tarmac drive is refinished in practical resin-bound pea shingle
Perspective Renders





This presented a wonderful opportunity for a suntrap balcony overlooking the newly landscaped gardens





